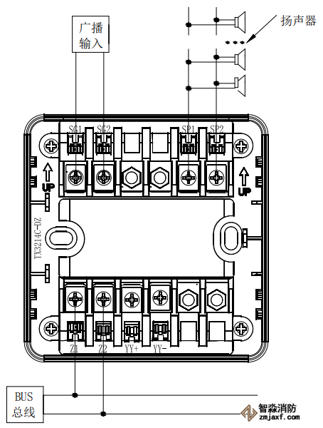
泰和安TX3214C輸出模塊接線圖
文章出處:http://www.kxjjw.com.cn/責任編輯:消防檢測儀器設備人氣:842發表時間:2020-11-13 09:05:55
泰和安TX3214C輸出模塊接線圖:

接線端子說明:
Z1、Z2:總線信號輸入,無極性;
SG1、SG2:事故廣播輸入端子;
SP1、SP2:揚聲器端子;
YY+、YY-:音樂廣播輸入端子(預留)。
注意:
現場如需使用音樂廣播輸入端子,模塊應處于不檢線狀態。
若回路聯動設備全部為此模塊,最大帶載數量為30個。每個廣播功率放大器配接此模塊最大數量為10個。
布線要求:
總線宜采用RVS-2×1.0mm²或1.5mm²阻燃線,廣播線及揚聲器線均采用BV線,截面積≥1.0mm2,穿金屬管(線槽)或阻燃PVC管敷設。
蘇州市智淼消防科技有限公司http://www.kxjjw.com.cn/蘇州智淼消防主營:應急管理部發布最新消防檢測儀器設備全套配備、防雷檢測裝置,火災現場勘查箱、消防監督檢查驗收箱、消防測試煙槍、試水裝置、建筑消防設施檢測箱、電氣防火檢測設備等,消防檢測設備網址:http://www.kxjjw.com.cn/;電話:18910580194(何經理)
上一篇:自動噴水滅火系統報警閥檢測??|??下一篇:消防設施系統檢測方法匯總!
此文關鍵字:泰和安TX3214C輸出模塊接線圖
推薦文章
- 12月一批消防新規即將施行,涉及多個省市與行業領域
- 《文化旅游建筑消防設計技術要點》之暖通專業(含防排煙)
- 司法部《行政執法人員行為準則》全文:嚴禁越權執法、不作為、慢作為
- 氣體滅火系統管道管件材質要求
- 室內消火栓、室外消火栓的保護距離是直線距離還是行走距離
- 14個強制性國家標準發布!覆蓋消防管理、火災探測報警、消防器具配件、防火涂料等重點領域
- 氣體啟動氣瓶的檢驗依據
- 自動噴水滅火系統工程消防施工質量驗收標準
- 甲類倉庫是否可以設置二層平臺?
- 自然排煙窗一定要形成對流才可以嗎






蘇公網安備32058102002157號